Torrent

PROCESO DE OBRA

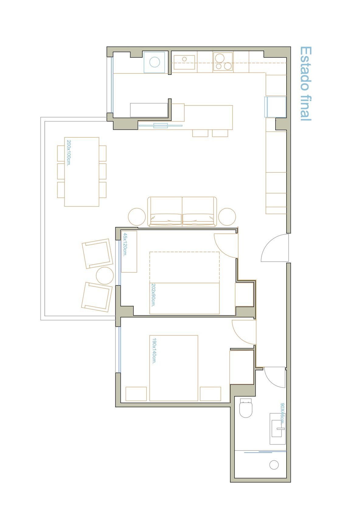
En este proyecto transformamos por completo una casa familiar que no respondía a las necesidades de quienes la habitan. Eliminamos el largo pasillo para crear espacios abiertos, conectados y llenos de luz.

Buscamos una vivienda funcional entre semana y acogedora los fines de semana. La terraza se integra como una extensión del hogar, pensada para disfrutar y compartir. Apostamos por el color, la luz natural y una distribución que invita a vivir mejor cada rincón.

Estado final V.costa